| 寝室に近い新設のトイレ |
| 就寝は一階の和室で家族全員が布団です。就寝和室隣
の洋室・子供部屋に車椅子で利用できるウォッシュ
レットと手すりを設けました。水遊びの好きなY君は
別に設けた手洗いで遊んでいます。 |
|
 |
たたみ座の設置 |
|
子供部屋には車椅子の座面高さに近い畳座約3帖を設け、
Y君が畳でごろごろできるように考えました。
また、一畳分は切り離してベッドとして移動できるようになっています。
ここは家族みんなに気に入って使われているようです。 |
|
 |

| 段差昇降機から続くウッドデッキ |
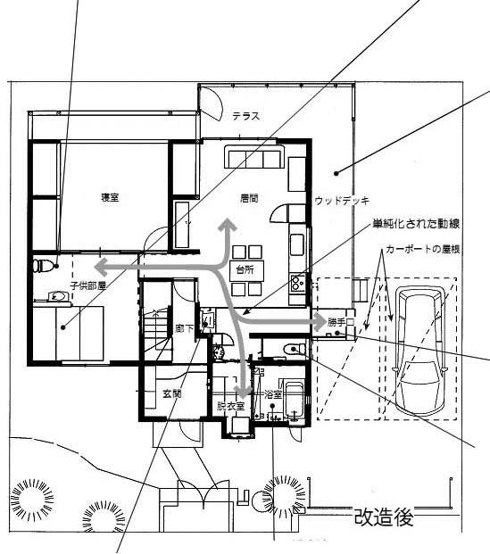
| Y君は、晴れた日には 車椅子のまま居間のサッシから外へ出て勝手口まで回遊し、
ウッドデッキを通過する時のガタガタする感じを楽しんでいます。 |

車椅子の出入り
駐車場側の勝手口を改造して(段差昇
降リフト)を設ける。 |
| 既存トイレの段差縮小 |
| 脱衣室の手前にある既存のトイレスペースは、便器のかさ上げとドアのとり替えをしました。
お風呂の前後にシャワーキャリーに乗った状態で便器を利用する事ができるようになりました。 |
|
 |
DKに洗面化粧台を設置 |
|
| Y君は、水遊びが大好き。そこで奥さんの目の届く所、
DKの片隅に洗面化粧台を置くことになりました。 |
|
| 入浴方法 |
 |
| 天井走行リフトを採用。折りたたみベンチの上で着衣を脱がせ、シャワーキャリーに座らせます。
その後、シャワーキャリーのいす部分を吊り上げ天井に埋め込まれたレールに沿って移動し、
洗い場や浴槽まで移動する方法です。 |
|